Imagine 98

3 CAMERE | VEDERE FRONTALĂ LA LAC | PARCARE INCLUSĂ | VOUCHER 500 € MOBILĂ

ID: P239042 Ovidiu, Est 7
120.000€ + TVA
Descriere
🌅 3 CAMERE | VEDERE FRONTALĂ LA LAC | PARCARE INCLUSĂ | VOUCHER 500 € MOBILĂ BUCĂTĂRIE | 0% COMISION

🌟 Avans minim • credit bancar • mutare imediată! 🌟

📜 Cadastru și intabulare pregătite pentru vânzare

📍 Ovidiu, Constanța – zonă liniștită, cu vedere spectaculoasă la Lacul Siutghiol

🛋️ Detalii esențiale:
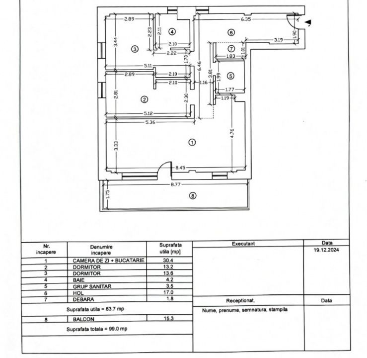
📐 Suprafață: 99 mp
🏢 Etaj: 2, 3, 4 sau 5 din 8

🔹 Dotări & beneficii premium:
🛏️ 3 camere spațioase – ideale pentru familie
🌞 Balcon pe toată lungimea apartamentului – răsărit & apus superbe
🚿 2 băi – cadă + duș
🚇 2 lifturi moderne
🔒 Videointerfon
🪟 Ferestre tripan Barrier – izolație fonică și termică excelentă
❄️ Aer condiționat + centrală pe gaze a imobilului
🅿️ Loc de parcare inclus în preț

💰 Preț: 145.200 € (TVA 21% inclus)
🏷 Comision 0% pentru cumpărător

📞 Detalii & vizionări: 0740 664 364

Un apartament ideal atât pentru locuire permanentă, cât și pentru investiție, într-una dintre cele mai căutate zone din Ovidiu. Priveliște, confort și avantaje clare – gata de mutare! 🏡✨

#ApartamentOvidiu #VedereLaLac #0Comision #ParcareInclusa #Apartament3Camere #ImobiliareConstanta #InvestitieImobiliara
Caracteristici
  • ID:P239042
  • Nr. camere:3
  • Nr. dormitoare:2
  • S. utila:99.00 mp
  • S. balcoane:15.00 mp
  • S. construita:99.00 mp
  • Comp.:Decomandat
  • Confort:Lux
  • Etaj:Etaj 3
  • Nr. bucatarii:1
  • Nr. bai:2
  • Nr. balcoane:1
  • An constructie:2024
  • Structura:Beton
  • Tip imobil:Bloc
  • Regim inaltime:P+8
  • Orientare:Est
Video
Specificatii
Curent
Apa
Canalizare
Gaz
Acces internet
Fibra optica
Utilitati in zona
Centrala imobil
Aer conditionat
Izolatie Exterior
Bloc izolat termic
Vopsea lavabila
Faianta
Parchet
Gresie
Ferestre Aluminiu
Usa intrare Metal
Usa interior Panel
Bucatarie Partial utilata
Apometre
Contor caldura
Nemobilat
Interfon
Videointerfon
Lift
Localizare
Biroul Imobiliar
Esti interesat de aceasta proprietate ?
Proprietati similare
TOP 0% comision Exclusivitate De vanzare Imagine 1
Apartament 2 Camere – Vedere Mare & Lac, Mamaia Nord
Mamaia, Nord 120.000€
2 camere 1 baie 54mp